26.02.2026

Wohnungsausschreibungen

Gemeinde

Freie Wohnung in der Wohnanlage Granbichlstraße 38

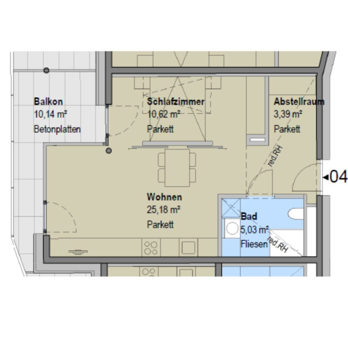
2-Zimmer-Wohnung (Top 4) im Erdgeschoss

Sehr geehrte Wohnungswerber und Wohnungswerberinnen,

in der Wohnanlage Granbichl (Granbichlstraße 38) wird eine 2-Zimmer-Wohnung (Top 4) im EG mit einer Wohnküche, ein Zimmer, Bad/WC und Gang im Ausmaß von 44,28 m² frei. Die Wohnung ist teilmöbliert. Weiters gehören zu der Wohnung eine Loggia und ein Kellerabteil.

Die monatliche Miete beträgt derzeit: Wohnung inkl. Betriebs- und Heizkosten: ca. € 602,13 brutto.

Für die genannte Wohnung ist eine Kaution von € 1.129,56 und ein Finanzierungs-Beitrag von EUR 870,44 bei Unterfertigung des Mietvertrages zu entrichten. Ein Autoabstellplatz zu dieser Wohnung kann gegen Entgelt zusätzlich in der Tiefgarage des Sozialzentrums angemietet werden.

Die ausgeschriebene Wohnung unterliegt den Wohnbauförderungsrichtlinien. Folgende Kriterien müssen bei Wohnungsvergabe erfüllt sein:

  • Eigentums- und Nutzungsrechte müssen an der bisher bewohnten Wohnung binnen 6 Monaten nach Bezug aufgegeben werden, Rechte an anderen Wohnungen sind innerhalb der vom Land Tirol vorgegebenen Frist aufzugeben.
  • Es liegt ein dringender Wohnbedarf vor und die für den Eigenbedarf bestimmte, geförderte Wohnung wird zur Befriedigung des regelmäßigen Wohnbedürfnisses (als Hauptwohnsitz) verwendet.
  • Das monatliche (Familien-)Einkommen (1/12 des jährlichen Familieneinkommens) je nach Größe des Haushaltes übersteigt die nachstehend angeführten Einkommensgrenzen nicht und die Wohnung ist für den Mieter finanzierbar.

Personenzahl                                  Obergrenze (EUR)

1                                                                      3.800,–
2                                                                      6.300,–
3                                                                      6.780,–
jede weitere Person                                 + 480,–

Falls Sie Interesse daran haben, übermitteln Sie uns das beigefügte Formular möglichst vollständig ausgefüllt bis spätestens Freitag, den 13. März 2026. Dieses kann persönlich am Gemeindeamt bei Frau Dagmar Klotz abgegeben oder per E-Mail an: mieten@soelden.gv.at gesendet werden.

Eine Meldebestätigung über die historischen Meldungen in Sölden (erhältlich am Meldeamt der Gemeinde Sölden) oder ein Versicherungsdatenauszug der ÖGK über die Beschäftigungszeiten bei einem Arbeitgeber in Sölden ist dem Formular beizulegen.

Kontaktperson

Dagmar Klotz

Wohnen | Mieten | Buchhaltung